Продажа помещения различного назначения, с.Хвастовичи, Ленина ул, 26, Калужская область
- Регион
- Калужская область
| Адрес | с.Хвастовичи, Ленина ул, 26Объект на карте |
- Общая площадь
- 286.70 м2
- Дата обновления
- 18.04.2026
- Дата размещения
- 13.12.2025
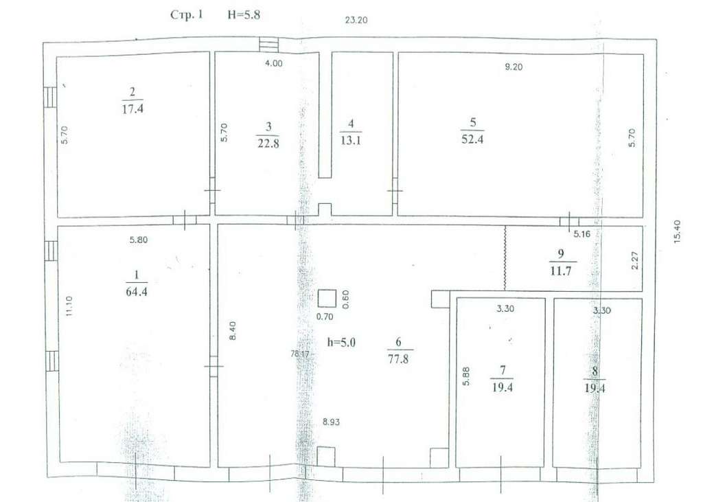
АО "Российский аукционный дом" по поручению ПАО «Почта России» сообщает о продаже нежилого здания и земельного участка. Принадлежит на праве собственности ПАО «Почта России». По всем вопросам обращаться в РАБОЧЕЕ время по указанному в объявлении телефону или в личные сообщения. Продажа осуществляется с электронного АУКЦИОНА на электронной торговой площадке АО «РАД». Аукцион на повышение цены. В объявлении указана НАЧАЛЬНАЯ цена. Заявки принимаются: до 28.11.2023г. Дата торгов: 04.12.2023г. Здание и земельный участок расположены по адресу: Калужская обл., Хвастовичский район, с. Хвастовичи, ул. Ленина, д. 26А. В центре с. Хвастовичи. Находится на закрытой территории. Здание представляет собой гараж с производственными помещениями. Функционально возможно использовать в разных направлениях бизнеса: от организации автосервиса до розничного магазина, при проведении соответствующей реконструкции. Нежилое здание: Общая площадь 286,7 кв. м. Кадастровый номер - 40:23:070207:138. Год завершения строительства: 1966 Материал стен: кирпич Высота потолков: 5,8 м. Обременений или ограничений не зарегистрировано. Здание не эксплуатируется. Земельный участок: Общая площадь 400 кв. м. Категория земель: земли населенных пунктов Виды разрешенного использования: под гараж Кадастровый номер: 40:23:070207:51 Обременений или ограничений не зарегистрировано.







